Casa en venta

Torredonjimeno
49.900 €
Prezzo ribassato 57.500 € (-14%)
4 dormitorios 4 dormitorios
142 m2 142 m2
2 baños 2 baños

Casa en venta

Torredonjimeno

Descripción anuncio

Se vende amplia casa con patio y terraza en Torredonjimeno, a muy pocos metros del Teatro Municipal y de aparcamientos públicos, en una zona céntrica y muy cómoda, rodeada de comercios, servicios y todo lo necesario para el día a día.
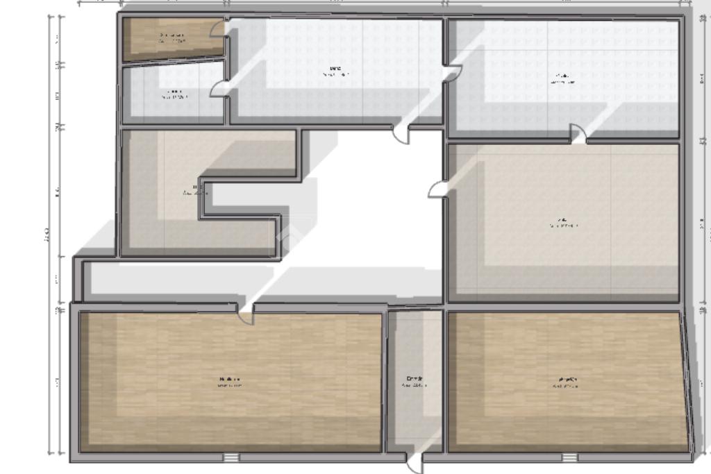
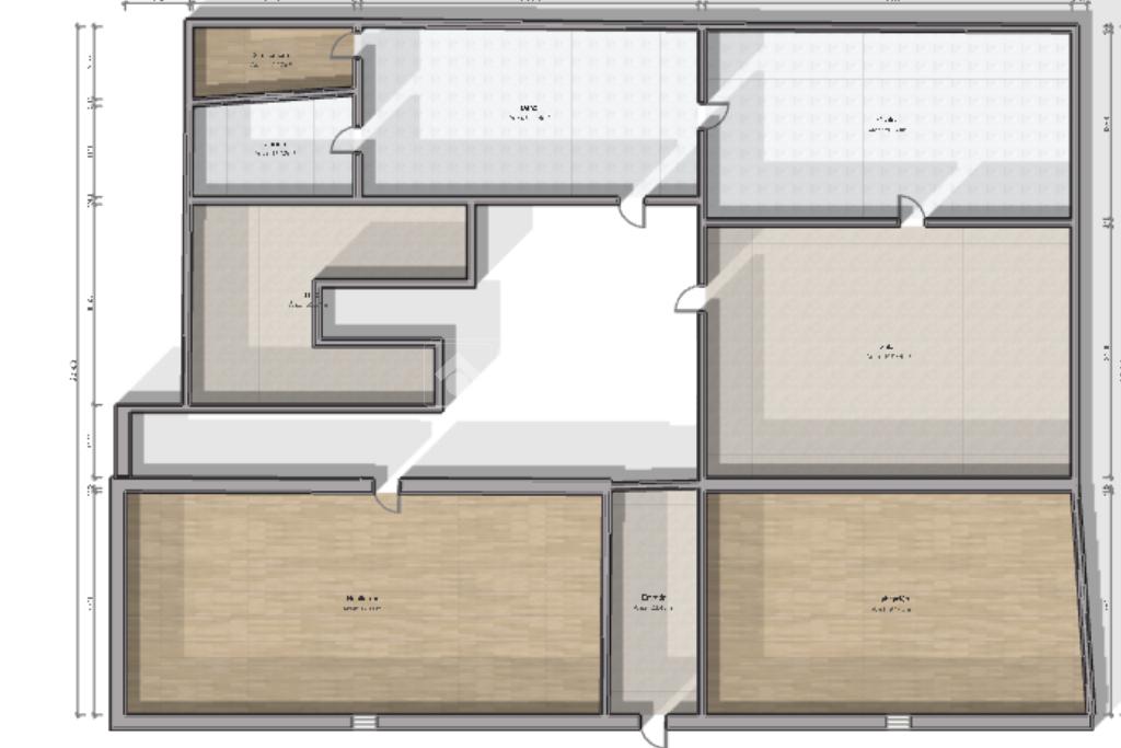
La vivienda cuenta con 142 m² construidos, distribuidos en tres plantas, ofreciendo múltiples posibilidades gracias a su amplitud y buena distribución.


En la planta baja encontramos un gran recibidor con acceso directo al patio, un salón comunicado con la cocina, que también tiene salida al patio, un dormitorio ideal como habitación, despacho o sala de estar, y un patio es uno de los grandes atractivos de la vivienda, ya que dispone de una segunda cocina con chimenea, perfecta para reuniones familiares, además de un aseo.
En la primera planta se distribuyen tres dormitorios y un baño completo, ofreciendo un espacio cómodo y funcional para la zona de descanso.
La segunda planta alberga un dormitorio o trastero y una buhardilla diáfana con salida a una terraza, ideal para disfrutar del aire libre, crear una zona de ocio o relax.


La vivienda necesita algo de reforma, lo que la convierte en una excelente oportunidad para adaptarla completamente a tu gusto y crear el hogar que siempre has imaginado, en una ubicación privilegiada del municipio.

Tecnocasa cuenta con departamento financiero propio, KIRON, que puede ayudarle a conseguir el MÁXIMO DE FINANCIACIÓN para la compra de cualquier inmueble.

NO DEJEN PASAR LA OPORTUNIDAD DE VISITAR EL INMUEBLE O CONTACTAR CON NOSOTROS PARA SOLICITAR MÁS INFORMACIÓN.

Oficina Tecnocasa de Martos, se encuentra en C/ Carlos III n°12 esquina con Av de Europa. Llámanos o déjenos su mensaje por WhatsApp. Tel: 604487567 Horario: Lunes a Viernes de 09:30h a 14:00h y de 17:00h a 20:30h; y sábados de 10:00h a 14:00h.

En cumplimiento del Decreto de la Junta de Andalucía 218/2005 del 11 de Octubre, se informa a los clientes que los gastos notariales, registrales, los de gestoría, los impuestos (ITP, AJD o IVA), los honorarios de intermediación y otros gastos inherentes a la compra, no están incluidos en el precio.

El consumidor tiene derecho a una copia del documento abreviado del inmueble.

Ver más

Características

Ref.:
645255
Libre:
Tipo de inmueble:
Media
Año de construcción:
1950
Ver más
Precio Precio
49.900 €
Cuota mensual Cuota mensual
€ 161 / mes

Otras características

Descripción del local
Baño Interior

Clase energética

Este inmueble está esperando clase energética
Año de construcción:
1950

Servicios cercanos

Colegios Colegios
Colegio "San José de la Montaña"
190 m
C.E.I.P. Martín Gordo
290 m
C.E.I.P. Puerta de Martos
380 m
C.E.I.P. Toxiria
390 m
C.E.I.P. Ponce de León
410 m
Supermercados Supermercados
Mercadona
1,4 Km
Ver más

Precio rebajado de €1 (14%%)

Calcula tu hipoteca

Simple y sin compromiso
Entrada
%
al mes
Hipoteca
%
El resultado de esta simulación es orientativo. Los datos indicados no corresponden a condiciones reales de productos y no implican compromiso, obligación o vínculo jurídico-legal para el Grupo Tecnocasa.

Solicita un asesoramiento

Introduce tus datos
GRACIAS POR CONTACTAR CON NOSOTROS.
Esta oficina de Kìron se pondrá en contacto contigo lo antes posible para ofrecerte un asesoramiento financiero más completo y acorde a la información que nos has facilitado.
Franquiciado
Estudio Ciudad De Martos Sl
Calle Carlos III (esq. Avda. Europa), 12 Local 23600 Martos (J)
Calle Carlos III (esq. Avda. Europa), 12 Local 23600 Martos (J) Zona: MARTOS
Lunes a viernes. 9:30h - 14:00h 17:00h - 20:30h Sábado 10:00h - 14:00h

Nuestro equipo


  • Antonio Garrido
    Colaborador

  • Raquel Rufián Anguita
    Colaborador

  • Laura Arias
    Colaborador

  • Raquel Nieto
    Colaborador

  • María Medina
    Auxiliar Administrativa

  • Patricia Escobar
    Colaborador

  • Ana Estrella
    Colaborador

  • Moises Masó Pedró
    Responsable

  • Carlos Susin Contreras
    Franquiciado
Franquiciado
Estudio Ciudad De Martos Sl
Calle Carlos III (esq. Avda. Europa), 12 Local 23600 Martos (J)

Franquiciado
Estudio Ciudad De Martos Sl
Franquiciado
Estudio Ciudad De Martos Sl

2026 Ibero Group Tecnocasa Services, S.L.U. - CIF B-65870776 - C/ Pallars, nº 1-3 Parque de Negocios Mas Blau II, 08820, El Prat de Llobregat (Barcelona-España). Red en franquicia - Cada sociedad franquiciada tiene su propio titular y es independiente del franquiciador.

Política de privacidad | Aviso legal | Pólitica de las Cookies | Información al consumidor | | Canal ético