Casa en venta

Fuensanta De Martos
109.900 €
Prezzo ribassato 122.900 € (-11%)
3 dormitorios 3 dormitorios
237 m2 237 m2
1 baño 1 baño

Casa en venta

Fuensanta De Martos

Descripción anuncio

Magnífica casa situada en la mejor zona de Fuensanta de Martos, a tan solo diez minutos de Martos, en un entorno tranquilo, bien comunicado y próximo a todos los servicios esenciales. Se trata de una vivienda amplia, funcional y muy bien distribuida, perfecta para quienes buscan comodidad y espacio.

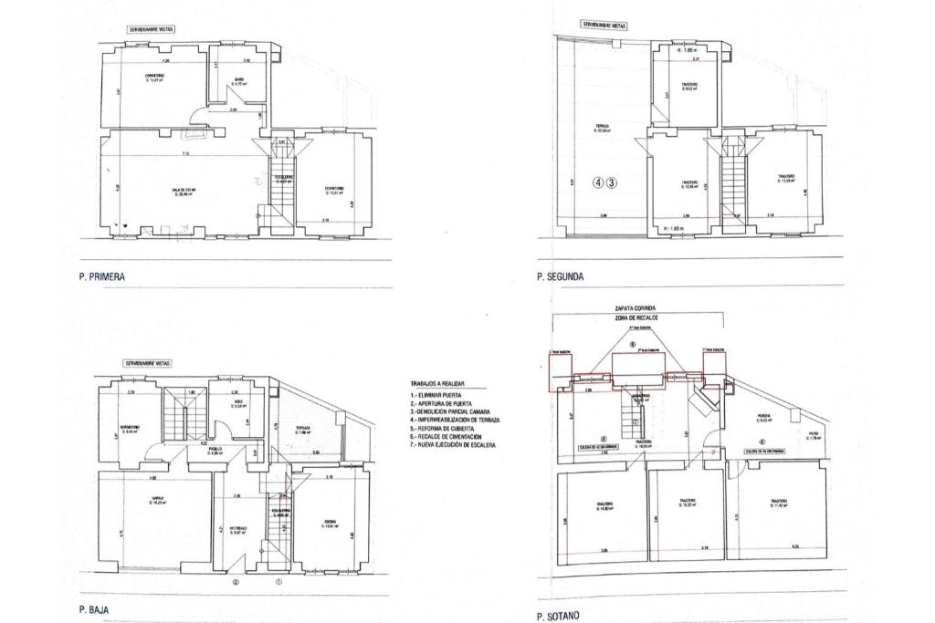
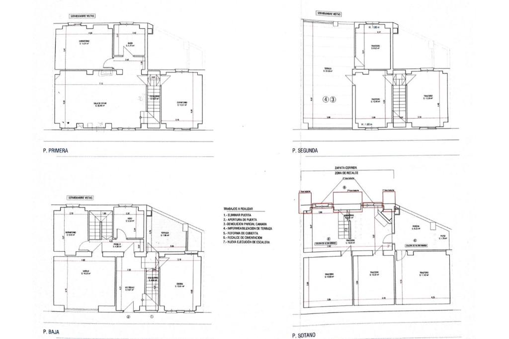
Al acceder a la propiedad, encontramos una cochera con capacidad para un coche, junto a una cocina muy amplia, equipada con una práctica despensa y con salida a un patio luminoso ideal para el día a día.
En esta misma planta se ubica un gran sótano dividido en tres habitaciones, con múltiples posibilidades: ampliación de dormitorios, creación de trasteros, sala de juegos, gimnasio o cualquier uso que necesite la familia.

La casa dispone de calefacción en todas las estancias mediante caldera de orujo, lo que garantiza un excelente confort durante todo el año.

En la primera planta, la vivienda ofrece un dormitorio adicional, un gran salón con balcón que proporciona luz natural y vistas agradables, un baño completo y el dormitorio principal, amplio y acogedor.

La última planta sorprende con otro dormitorio, un lavadero con habitación de planchado, y culmina con una gran terraza, perfecta para relajarse, tomar el sol y disfrutar de las increíbles vistas panorámicas del entorno.

En definitiva, una casa preparada para entrar a vivir, con amplios espacios, múltiples posibilidades y una ubicación excepcional en Fuensanta de Martos. Ideal para familias que buscan calidad de vida y todas las comodidades a su alcance.

Tecnocasa cuenta con departamento financiero propio, KIRON, que puede ayudarle a conseguir el MÁXIMO DE FINANCIACIÓN para la compra de cualquier inmueble.

NO DEJEN PASAR LA OPORTUNIDAD DE VISITAR EL INMUEBLE O CONTACTAR CON NOSOTROS PARA SOLICITAR MÁS INFORMACIÓN.

Oficina Tecnocasa de Martos, se encuentra en C/ Carlos III n°12 esquina con Av de Europa. Llámanos o déjenos su mensaje por WhatsApp. Tel: 604487567 Horario: Lunes a Viernes de 09:30h a 14:00h y de 17:00h a 20:30h; y sábados de 10:00h a 14:00h.

En cumplimiento del Decreto de la Junta de Andalucía 218/2005 del 11 de Octubre, se informa a los clientes que los gastos notariales, registrales, los de gestoría, los impuestos (ITP, AJD o IVA), los honorarios de intermediación y otros gastos inherentes a la compra, no están incluidos en el precio.

El consumidor tiene derecho a una copia del documento abreviado del inmueble.

Ver más

Características

Ref.:
640361
Tipo de inmueble:
Media
Año de construcción:
1936
Ver más
Precio Precio
109.900 €
Cuota mensual Cuota mensual
€ 378 / mes

Clase energética

E
E
E
E
E
E
E
E
E
Consumo de energia:
219,7 kW h/m² año
Emisiones:
46.1 Kg CO2/m² año
Año de construcción:
1936

Servicios cercanos

Colegios Colegios
C.E.I.P. "Virgen de la Fuensanta"
550 m
I.E.S. "Fuente de la Negra"
780 m
Farmacias Farmacias
Farmacia Muñoz Galisteo
370 m
Supermercados Supermercados
Alimentación María Elena
130 m
Francisco Carballo Marchal
230 m
Pescados y Mariscos Martos y Pareja
230 m
Alimentación Bonilla Molina
240 m
Supermercado Pama
390 m
Tiendas Tiendas
Manuel Peña Santiago
200 m
Antonio Bermúdez Romero
240 m
Panadería Ntra. Sra. de la Fuensanta
610 m
Bar Bar
Azahara
220 m
Sdad. Casino del Progreso
280 m
Monterrey
290 m
Ténesy
540 m
El Paraíso
580 m
restaurantes restaurantes
Salón de Bodas El Parque
190 m
Miami
740 m
Los Pilotos
2,4 Km
Escaramujo
2,9 Km
Ver más

Precio rebajado de €1 (11%%)

Calcula tu hipoteca

Simple y sin compromiso
Entrada
%
al mes
Hipoteca
%
El resultado de esta simulación es orientativo. Los datos indicados no corresponden a condiciones reales de productos y no implican compromiso, obligación o vínculo jurídico-legal para el Grupo Tecnocasa.

Solicita un asesoramiento

Introduce tus datos
GRACIAS POR CONTACTAR CON NOSOTROS.
Esta oficina de Kìron se pondrá en contacto contigo lo antes posible para ofrecerte un asesoramiento financiero más completo y acorde a la información que nos has facilitado.
Franquiciado
Estudio Ciudad De Martos Sl
Calle Carlos III (esq. Avda. Europa), 12 Local 23600 Martos (J)
Calle Carlos III (esq. Avda. Europa), 12 Local 23600 Martos (J) Zona: MARTOS
Lunes a viernes. 9:30h - 14:00h 17:00h - 20:30h Sábado 10:00h - 14:00h

Nuestro equipo


  • Antonio Garrido
    Colaborador

  • Raquel Rufián Anguita
    Colaborador

  • Laura Arias
    Colaborador

  • Raquel Nieto
    Colaborador

  • María Medina
    Auxiliar Administrativa

  • Ana Estrella
    Colaborador

  • Moises Masó Pedró
    Responsable

  • Carlos Susin Contreras
    Franquiciado
Franquiciado
Estudio Ciudad De Martos Sl
Calle Carlos III (esq. Avda. Europa), 12 Local 23600 Martos (J)

Franquiciado
Estudio Ciudad De Martos Sl
Franquiciado
Estudio Ciudad De Martos Sl

2026 Ibero Group Tecnocasa Services, S.L.U. - CIF B-65870776 - C/ Pallars, nº 1-3 Parque de Negocios Mas Blau II, 08820, El Prat de Llobregat (Barcelona-España). Red en franquicia - Cada sociedad franquiciada tiene su propio titular y es independiente del franquiciador.

Política de privacidad | Aviso legal | Pólitica de las Cookies | Información al consumidor | | Canal ético